- HOME
- 引越作業計画
一番大切なのは「計画」と「管理」です。
どうしても引越でイメージしがちなのは、「トラック」とか「作業員」「段ボール」・・・引越会社、引越し業者はその日の作業予定によって、価格がまちまちになっています。でも、サービスレベルはどうなんでしょう。
一番大切なのは、「計画」と「管理」です。
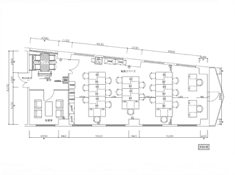
レイアウト図面
工程表
作業届出書
オフィス引越 チェックリスト
オフィス引越に伴う届け出関係
安心のオフィスの移転・引越しの無料相談窓口





